Onze-Lieve-Vrouwestraat 52

2800 Mechelen

Beschrijving

Dit unieke bedrijfsgebouw "De Refuge" aan de Onze-Lieve-Vrouwestraat in Mechelen biedt een zeldzame combinatie van historische charme en moderne kantoorruimtes. 

Het design combineert authentieke architectuur - hoge plafonds en historische elementen - met het hedendaagse comfort en de faciliteiten van een eigentijdse werkplek. Met uitzicht op de heraangelegde, groene binnentuin creëert de Refuge een rustgevende en tegelijkertijd levendige sfeer, midden in de historische stad.

Gelegen in het sfeervolle centrum van Mechelen, geniet dit pand van een uitstekende centrale ligging en bereikbaarheid. De transformatie maakt het geheel bovendien open en publiek toegankelijk, wat bijdraagt aan een aangename, dynamische site. De mogelijkheid tot een flexibele indeling op maat maakt de Refuge de perfecte strategische keuze voor groeiende en gevestigde organisaties.

Ligging en Transport

Het pand is centraal gelegen in het hart van Mechelen, wat een sterke meerwaarde biedt voor zowel klanten als medewerkers. De site is uitstekend bereikbaar met alle transportmiddelen.

  • Midden in het bruisende stadscentrum van Mechelen;
  • Goede verbindingen met bus en een korte afstand tot het treinstation van Mechelen;
  • Het pand ligt centraal, ideaal voor lokale en regionale klanten.

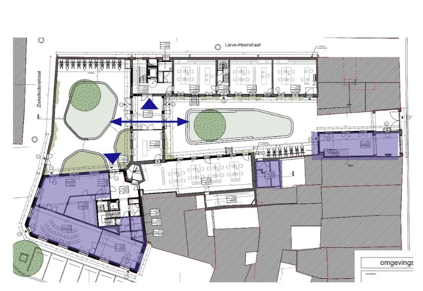
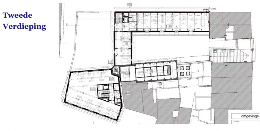
Ruimtes

De Refuge biedt kantoorruimte te huur aan met een hoge mate van flexibiliteit, ideaal voor bedrijven met groeipotentieel of organisaties die een op maat gemaakte indeling wensen.

  • Mogelijkheid tot huur van de volledige site of deelverhuur in kleinere kantooroppervlakten;
  • De indeling is aanpasbaar op maat van uw organisatie;
  • Kantoorruimtes met historische charme, hedendaags comfort en veel natuurlijke lichtinval.

Voorzieningen

De renovatie zorgt ervoor dat dit historische pand voldoet aan de eisen van een modern kantoor met focus op comfort en werksfeer.

  • Exterieur : groene, publiek toegankelijke tuin en binnenplein door ontharding.
  • Interieur : hedendaagse comfort en faciliteiten in een authentieke setting.

Extra diensten

De site behoudt een levendige en inspirerende sfeer door de aanwezigheid van andere partijen op de site en de publieke opening van de tuin. Dit draagt bij aan een unieke kantoorbeleving.

De Refuge biedt meer dan alleen kantoorruimte; het biedt een unieke, strategisch gelegen thuisbasis met een rijk verhaal, flexibele schaalmogelijkheden en een groene, inspirerende werkomgeving in het hart van de stad. 

Ontdek de mogelijkheden van het Refuge als de nieuwe, inspirerende thuisbasis voor uw organisatie. Neem vandaag nog contact op met DGI om een bezoek te plannen of een persoonlijk adviesgesprek aan te vragen.


  • EPC Bouw : EPC Bouw (onderdeel van de EPB): Dit pand betreft een nieuwbouwproject. Conform de EPB-wetgeving is het mogelijk dat het EPC Bouw nog niet beschikbaar is vanwege de wettelijk toegelaten periode van maximaal 12 maanden tussen de datum van ingebruikname en het indienen van de EPB-aangifte. Zodra het EPC Bouw beschikbaar is, wordt dit onmiddellijk aan de koper/huurder overhandigd.
  • PID (postinterventiedossier):
  • Gewestplan: Wonen
  • Onroerend erfgoed: Refugiumvan Grimbergen
  • Watertoets: Perceelscore of P-score A Gebouwenscore of G-score A

Kaart

Te huur

Naam Type Oppervlakte Prijs / eenheid / jaar Max prijs / jaar Beschikbaarheid
Nieuwbouw 2 kantoor 259 m² € 0,00 € 0,00 op aanvraag
Nieuwbouw 1 kantoor 258 m² € 0,00 € 0,00 op aanvraag
Nieuwbouw 0 kantoor 62 m² € 0,00 € 0,00 op aanvraag
Nieuwbouw -1 kantoor 140 m² € 0,00 € 0,00 op aanvraag
Restauratie 2 kantoor 340 m² € 0,00 € 0,00 op aanvraag
Restauratie 1 kantoor 431 m² € 0,00 € 0,00 op aanvraag
Restauratie 0 kantoor 457 m² € 0,00 € 0,00 op aanvraag
Restauratie -1 kantoor 179 m² € 0,00 € 0,00 op aanvraag

Totale maximale jaarlijkse huurprijs: € 0,00
Totale maximale maandelijkse huurprijs: € 0,00




Contacteer Imed


In de buurt